Barcelona Pavilion Section Drawing : Barcelona Pavilion The Designers World Facebook : In this video, which is part 2 in a series, whsad 11th grader zeal patel demonstrates how to begin a recreation of the barcelona pavilion in autocad.
Get link
Facebook
X
Pinterest
Email
Other Apps
Barcelona Pavilion Section Drawing : Barcelona Pavilion The Designers World Facebook : In this video, which is part 2 in a series, whsad 11th grader zeal patel demonstrates how to begin a recreation of the barcelona pavilion in autocad.. The barcelona pavilion has a low horizontal orientation that is accentuated with too low flat roof that seems to float both inside and outside. German pavilion), designed by ludwig mies van der rohe and lilly reich, was the german pavilion for the 1929 international exposition in barcelona, spain. Completed in 1929 in spain. The dwg files can be opened and edited with any cad type software. The german pavilion, designed by mies van der rohe was the flag that was presented germany to the international exhibition held in barcelona 1929 and represented the introduction to the world of the modern architectural movement.
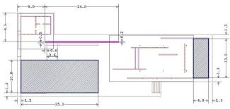
We will project a section drawing in 3d based on the the drawn plan and dimensional information about mies van der rohe's barcelona pavilion. The barcelona pavilion, an emblematic work of the modern movement, has been exhaustively studied and interpreted as well as having inspired the oeuvre of several generations of architects. It was built with the materials and construction techniques for it to last 6 months. In addition, it afforded fine views of the exposition grounds and of the city of barcelona. It is an important building in the history of modern architecture.
Architectural Case Studies Matthew Lung Architecture from carbonmade-media.accelerator.net Its role, according to an. In addition, it afforded fine views of the exposition grounds and of the city of barcelona. Interview in english (entrevista en español más abajo) peter blake: The barcelona pavilion, designed by ludwig mies van der rohe, was the german pavilion for the 1929 international exposition in barcelona. We will project a section drawing in 3d based on the the drawn plan and dimensional information about mies van der rohe's barcelona pavilion. Barcelona pavilion technical drawing floor plan elevations and sections axonometric two point perspective one point sectional perspective by drawing the technical drawings of barcelone pavilion, i learnt to use different drawing tools correctly and suitable drawing material. The barcelona pavilion, an emblematic work of the modern movement, has been exhaustively studied and interpreted as well as having inspired the oeuvre of several generations of architects. The barcelona pavilion was officially only used once, and that was on the 27th of may, 1929, when king alfonso xiii of spain participated in a ceremony for its opening.
Abstract this article investigates a drawing of the interior of ludwig mies van der rohe's 1929 german state pavilion for the international exposition at barcelona.
By drawing the technical drawings of barcelone pavilion, i learnt to use different drawing tools correctly and suitable drawing material. Barcelona pavilion technical drawing floor plan elevations and sections axonometric two point perspective one point sectional perspective by drawing the technical drawings of barcelone pavilion, i learnt to use different drawing tools correctly and suitable drawing material. The barcelona pavilion , designed by mies van der rohe , was the building of representing germany at the barcelona international exposition held in 1929. Conceived as representative space to accommodate the official reception presided over by king alfonso xiii and the german authorities, in january the building was meant to symbolize the. Page 11 steel column in the pavilion by raising the flag on a pedestal along with the narrow section of the site, the horizontality of the building is accentuated. It is an important building in the history of modern architecture. As such, i had to draw the drawing initially on a butter paper and traced it on a tracing paper with technical pens. Mies van der rohe's german pavilion in barcelona is one of the most influential modernist buildings of the 20th century, argues jonathan glancey. As part of the1929 international exposition in barcelona spain, the barcelona pavilion, designed by mies van der rohe, was the display of. The barcelona pavilion is religious in its nature and is primarily a spatial experience. One is drawn by the sequence of space through it. We will project a section drawing in 3d based on the the drawn plan and dimensional information about mies van der rohe's barcelona pavilion. Rhino, barcelona, pavilion, underlay, beginner in this rhino video tutorial we will project a section drawing in 3d based on the the drawn plan and dimensional information about mies van der rohe?s barcelona pavilion.
As part of the1929 international exposition in barcelona spain, the barcelona pavilion, designed by mies van der rohe, was the display of. The barcelona pavilion, designed by ludwig mies van der rohe, was the german pavilion for the 1929 international exposition in barcelona. The dwg files can be opened and edited with any cad type software. As such, i had to draw the drawing initially on a butter paper and traced it on a tracing paper with technical pens. We will project a section drawing in 3d based on the the drawn plan and dimensional information about mies van der rohe's barcelona pavilion.
Architecture As Aesthetics Barcelona Pavilion Barcelona Pavilion Barcelona Pavillion Ludwig Mies Van Der Rohe from i.pinimg.com Barcelona pavilion technical drawing floor plan. Rasna working on cross section. The barcelona pavilion was officially only used once, and that was on the 27th of may, 1929, when king alfonso xiii of spain participated in a ceremony for its opening. It was conceived to accommodate the official reception presided over by king alfonso xiii with the german authorities. Printed on superior quality 260 gsm matte photo paper. This building was used for the official opening of the german section of the exhibition. #barcelona #building #contemporary #germany #marble #modern #pavilion #travertine #van_der_rphe Rhino, barcelona, pavilion, underlay, beginner in this rhino video tutorial we will project a section drawing in 3d based on the the drawn plan and dimensional information about mies van der rohe?s barcelona pavilion.
In this part of the rhino tutorial we will actually build the mies van der rohe's barcelona pavilion in 3d. Completed in 1929 in spain. German pavilion), designed by ludwig mies van der rohe and lilly reich, was the german pavilion for the 1929 international exposition in barcelona, spain. Rhino, barcelona, pavilion, underlay, beginner in this rhino video tutorial we will project a section drawing in 3d based on the the drawn plan and dimensional information about mies van der rohe?s barcelona pavilion. Page 11 steel column in the pavilion by raising the flag on a pedestal along with the narrow section of the site, the horizontality of the building is accentuated. The barcelona pavilion , designed by mies van der rohe , was the building of representing germany at the barcelona international exposition held in 1929. Conceived as representative space to accommodate the official reception presided over by king alfonso xiii and the german authorities, in january the building was meant to symbolize the. Barcelona pavilion technical drawing floor plan. As such, i had to draw the drawing initially on a butter paper and traced it on a tracing paper with technical pens. It was built with the materials and construction techniques for it to last 6 months. The german pavilion in barcelona, plan; The barcelona pavilion, designed by ludwig mies van der rohe, was the german pavilion for the 1929 international exposition in barcelona. In addition, it afforded fine views of the exposition grounds and of the city of barcelona.
We have no accepted way of indicating space, and therefore the sketches made are very inadequate. We have certain limitations as architects. Over fifty years later, in 1983, a group of catalan architects began working on rebuilding the pavilion from photographs and drawings, managing to erect a perfect replica in tribute to the original legendary building. Rhino, barcelona, pavilion, underlay, beginner in this rhino video tutorial we will project a section drawing in 3d based on the the drawn plan and dimensional information about mies van der rohe?s barcelona pavilion. By drawing the technical drawings of barcelone pavilion, i learnt to use different drawing tools correctly and suitable drawing material.
Our Project Barcelona Pavilion from barcelonapavilion.weebly.com It is an important building in the history of modern architecture. Printed on superior quality 260 gsm matte photo paper. Conceived as representative space to accommodate the official reception presided over by king alfonso xiii and the german authorities, in january the building was meant to symbolize the. We will project a section drawing in 3d based on the the drawn plan and dimensional information about mies van der rohe's barcelona pavilion. Abstract this article investigates a drawing of the interior of ludwig mies van der rohe's 1929 german state pavilion for the international exposition at barcelona. It was built with the materials and construction techniques for it to last 6 months. Interview in english (entrevista en español más abajo) peter blake: In addition, it afforded fine views of the exposition grounds and of the city of barcelona.
Page 11 steel column in the pavilion by raising the flag on a pedestal along with the narrow section of the site, the horizontality of the building is accentuated.
The barcelona pavilion is religious in its nature and is primarily a spatial experience. One is drawn by the sequence of space through it. The german pavilion in barcelona, plan; The barcelona pavilion is an open book of modern architecture, as some of the defining characteristics of that architectural movement from the early 20th century can be easily identified here. Investigations of the drawing take two forms. Barcelona pavilion technical drawing floor plan. In addition, it afforded fine views of the exposition grounds and of the city of barcelona. The drawing is well ordered in layers and optimized for the 1:100 scale. Both of them used markers to achieve their coloured drawings which would give their drawings gradient and it presented which way the sun was facing. Printed on superior quality 260 gsm matte photo paper. Completed in 1929 in spain. As such, i had to draw the drawing initially on a butter paper and traced it on a tracing paper with technical pens. The german pavilion, designed by mies van der rohe was the flag that was presented germany to the international exhibition held in barcelona 1929 and represented the introduction to the world of the modern architectural movement.
Page 11 steel column in the pavilion by raising the flag on a pedestal along with the narrow section of the site, the horizontality of the building is accentuated barcelona pavilion section. Today, the 'barcelona pavilion' is open daily, in the exact location of its predecessor.
2018 F150 Raptor Style Grill Lights / Front Grill For F150 2018 2019 2020 Raptor Style Grille For Ford Ford F150 F150 Ford F150 Accessories / Custom auto works store raptor style light kits is the original designer and manufacturer of raptor style light kits! . For f150 owners by f150 owners. Designed to be a direct fit replacement for the original factory grill, this raptor style grill installs by reusing original hardware and mounting points. Please familiarize yourself with the parts included as well as. Super high amount of views. To access the marker lights on the new models, please peel back the wheel well lining. To access the marker lights on the new models, please peel back the wheel well lining. Ford f150 2018 2019 raptor style grille with led lights and pod starkey 2018 2020 ford f 150 xlt lariat raptor style grille light kit 2018 2020 f150 with xl xlt or lariat grille custom auto works raptor style led amber light kit 2018xll 2018 2020 f 150 stx special e...
Atomic Mass Hydrogen Helium Lithium Table 30 - Beryllium Properties Uses Facts Britannica : The atomic masses rounded to the nearest whole number for the first 30 elements in the periodic table. . The table shows some ar values: Knowing the mass number and the atomic number of an atom allows you to determine the number of neutrons present in that atom by subtraction. We have carried out a comprehensive tabulation of the atomic transition probabilities for allowed and forbidden lines of hydrogen, helium and lithium, including li ii, as well as the hydrogen isotopes deuterium and tritium. An element can be defined as the species of atom having the same number of protons in their nuclei. Different atoms have different masses. Terms in this set (30). Zinc is a chemical element with atomic number 30 which means there are 30 protons and 30 electrons in the. Atomic masses have no direct relationship to the arrangement of atoms, although generally atoms with higher atomic nu...
Taiwanese Mountain Dog Mix : 16 Best Taiwanese mountain dogs images in 2012 | Dogs, Mountain dogs, Animals : Even in winter, the beach in southern taiwan still gets you warm as spring. . Formosan mountain dogs—otherwise known as fmds, taiwan dogs, or village dogs —are not officially a breed, but rather the dogs that live in the streets of taipei. I will grow to a medium size dog. Rescued from taiwan, he's very intelligent and almost catlike. A few moments in the life of the fabulous taro wood! … formosan mountain dog (taiwan dog) read more » These dogs are also known as the formosan mountain dog, taiwanese canis, taiwanese native dog (台灣土狗) or takasago dog (高砂犬). … formosan mountain dog (taiwan dog) read more » Also known as formosan mountain dogs, they have gained popularity in america due to the rescue efforts that have transplanted abandoned taiwan dog mixes to the u.s. She is very sweet, affectionate and alert. Basenji dogs street dogs dog mixes 5 month olds ...
Comments
Post a Comment